Снегоход
Начинают работу с рам снегохода и гусеничного блока, которые изготавливают в виде 2 сварных лонжеронов. В средних частях используют уголки 50х36, спереди и сзади устанавливают металлические пластины 2-миллиметровой толщины. У последних отгибают края на 90°, что добавляет деталям жесткости.
В передней пластине делают отверстие для вала, приводящего в движение гусеницы, в задней — для второй ее оси, которая является натяжной. Вблизи последних, с обеих сторон рамы монтируют натяжные устройства для гусеницы и цепной передачи.
К лонжеронам снизу приваривают 5 кронштейнов, имеющих открытые пазы. В них располагают оси поддерживающих гусеницу опорных катков. Последних 18, по 3-4 шт. на каждой оси — передней и задней на краях, средних — в шахматном порядке. Оси закрепляют в пазах с помощью гаек и контргаек.

Катки подходят от агрегата, который используется для сортировки картофеля, оси — от картофелекопалки. Оси отпускают, протачивают, нарезают резьбу М10. Между катками, для фиксации положения располагают дюралевые трубки соответствующего диаметра.
На каждый лонжерон приваривают 3 стойки, используя уголки 30х30. Соединяют по верху такими же поперечинами:
- к передней и средней приваривают с правой стороны стальной лист толщиной 2 мм, на котором монтируют редуктор с промежуточным валом цепной передачи;
- между другой парой устраивают ящик с крышкой, являющейся сиденьем.
На передние концы лонжеронов приваривают поперечную балку — траверсу переднего моста. К ее концам — втулки под рулевые лыжи, в середине — стойку, образующую моторный подрамник. Все детали из водопроводной трубы с внешним диаметром 32 мм.
Гусеницу для мотособаки используют от «Бурана». Ее укорачивают на 50 см и сшивают. Приводные и натяжные зубчатые колеса изготавливают по виду «бурановских» из крепкого пластика толщиной 1,5 см.
Для приводного вала гусеницы используют трубу наружным размером 28 мм. На краях:
- Приваривают фланцы, к которым через отверстия крепят зубчатые колеса.
- Впрессовывают в отверстия вала наконечники-цапфы, диаметр которых предварительно протачивают для посадки подшипников 80204. Один из наконечников делают длиннее и ставят на него ведомую звездочку, через которую приводится вал во вращение. Крепят ее гайкой М14, под которую конец цапфы протачивают и нарезают резьбу.
Аналогично приводному, но с 2 одинаковыми наконечниками, делают натяжной вал.
Двигатель бензопилы через свою раму монтируют на моторном подрамнике — стойке, имеющейся на поперечной балке. Сверху располагают бензобак. Редуктор разворачивают на 180°, закрепляют на площадке. На ней устанавливают также ходоуменьшитель — промежуточный вал. На нем крепят звездочки с количеством зубьев 38 и 10. Цепи для передачи вращения берут от мотоцикла «Восход», «Минск».

В рулевое управление входит:
- опорно-рулевые лыжи, на которых установлены рычаги;
- сошка рулевого вала, с которой жесткими тягами соединены рычаги лыж;
- мотоциклетный 2-рычажный руль с рычажком управления газом вблизи правой рукоятки.
Стенки, дно ящика закрывают 4-слойной фанерой или досками. Его крышка служит сиденьем: для ее изготовления берут 6-слойную фанеру, закрывают слоем поролона и кожзаменителем.
Какие самоделки из бензопилы можно сделать?
Бензопила — очень удобный инструмент для изготовления самоделок. Приспособив её на специальную платформу с колесами, и соединив цепь с валом, на котором будут установлены ножи, можно получить мощную газонокосилку. Кстати, чтобы долго не заморачиваться, на вал можно установить звёздочку от заднего колеса велосипеда.

Кроме того, из бензопилы можно сделать отличную пилораму, поскольку переделывание данного инструмента, в этом случае, также сводится к минимуму.

Вообще, все самоделки из бензопилы, можно разделить на две большие группы:
- В первую группу попадают те самоделки, при изготовлении которых практически нет нужды разбирать и модернизировать бензопилу;
- Ко второй группе самоделок, относится всевозможная техника: снегоуборочные машины, мопеды, аэросани, квадроциклы и т. д. Другими словами говоря, сложные механические устройства, для изготовления которых придется кардинально разобрать бензопилу, сделать водяную или воздушную систему охлаждения, в общем, полностью изменить этот бензиновый инструмент.
Рассмотрим, что можно сделать из бензопилы, что обязательно пригодится в домашнем хозяйстве.

Так, например, на основе бензопилы «Дружба» можно сделать следующие самоделки:
- Мощный лодочный двигатель;
- Бензиновую болгарку;
- Пилораму;
- Мотокультиватор;
- Газонокосилку.
Если дело касается автомобильных самоделок, то из практически любой бензопилы, можно сделать:

- Мопед, если установить бензопилу на велосипед;
- Снегоход и аэросани;
- Снегоуборщик;
- Квадроцикл;
- Самокат.
Конечно же, вторая группа самоделок из бензопилы, требует основательного подхода и полного изучение конструкции.

Также, потребуется докупить все необходимые материалы, а в некоторых случаях, не обойтись и без сварочного аппарата.
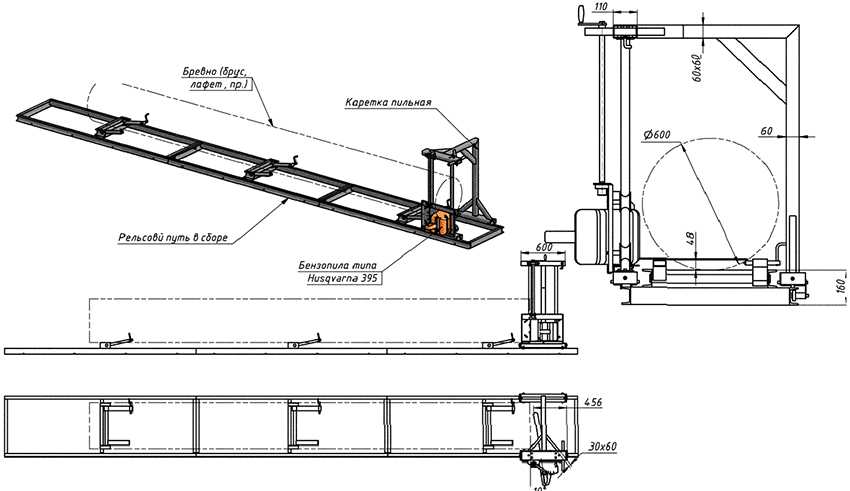
Пилорама из бензопилы
Наиболее простой в изготовлении, является самодельная пилорама из бензопилы Урал, Тайга или Дружба. Суть работы самодельной пилорамы заключается в том, что имеется одна большая направляющая, по которой на подвижных салазках, взад и вперёд, двигается бензопила.

В качестве направляющей, можно использовать рельсу или несколько длинных, но ровных металлических уголков. Платформа, на которую впоследствии будет закреплена бензопила, изготавливается из куска толстой стали, толщина которой должна быть не менее 5 мм.
Особого внимания заслуживает подвижная часть пилорамы, та, посредством которой платформа и осуществляет свое движение вдоль направляющей. В качестве роликов, здесь можно использовать металлическую трубу с прорезиненной поверхностью
Очень важно, чтобы ширина подвижной части совпадала бы с шириной направляющей

Как видно на фото, бревно, расположенное рядом с пилорамой, довольно легко разрезается на несколько частей, посредством движущейся по направляющей бензопилы. Таким образом, можно прилично сэкономить на покупке пилорамы, при этом, как видно, бензопилу практически не нужно каким-то образом переделывать, разбирать и т. д.
Мотоблок из бензопилы
Как было сказано выше, из бензопилы можно сделать различные самоделки для дома и дачи. Одними из таких самоделок, являются косилка и мотоблок. С косилкой из бензопилы дела обстоят не так сложно, как с мотоблоком, для изготовления которого придется варить металлическую раму, после чего, приспосабливать к ней два колеса сбоку.

Принцип изготовления мотоблока из бензопилы заключается в использовании нескольких звёздочек, которые могли бы передавать крутящееся усилие ножам. Для этих целей звёздочки располагаются по бокам металлического вала, на котором приварены несколько ножей.

Самодельный мотоблок из бензопилы Урал или Дружба, станет настоящим помощником для тех, кто имеет достаточно большой по площади огород. Может такой мотоблок и не будет отличаться большой мощностью, однако его вполне хватит для того, чтобы решить основную задачу по обработке земли.
Техника безопасности
Газонокосилка представляет собой травмоопасное устройство, а самодельная — в особенности. Из соображений безопасности косьбу следует осуществлять с соблюдением таких правил:

- Обувь надевается закрытая, брюки — длинные.
- Глаза защищаются очками.
- Необходимо следить, чтобы при косьбе дети и животные находились на безопасном расстоянии от машинки. Оно составляет 30 м (ножом может выбросить камень или ветку).
- Работы проводятся только при достаточном освещении.
- Газонокосилку с электроприводом нельзя использовать на мокром газоне.
- Нельзя отходить от устройства, не выключив его.
- Обслуживание, очистка и ремонт осуществляются только с выключенным двигателем.
- Стрижка газона на неровной местности осуществляется не вверх-вниз по склону, а поперек него.
Насос из бензопилы
Иногда на даче или загородном участке складывается ситуация с отсутствием воды. Причины могут быть различными, но решить такую проблему также сможет бензопила. Для этого необходима соответствующая насадка, которая будет способна перекачивать воду. Конечно, использовать пилу для регулярного водоснабжения – это нерационально. Однако аварийную подачу воды вполне возможно наладить.
Насос-приставка к бензопиле Дружба
Такое устройство возможно будет использовать, например, для откачивания воды из погреба во время весеннего таяния снега. Иногда её используют и для полива огорода и прочих нужд. Конструктивно такая насадка представляет собой центробежный насос, в котором имеется кронштейн с отверстиями, что позволяют прикрепить все устройство к бензопиле. Турбина такого насоса приводится во вращение через специальный шкив.
«Дружба» и рыбалка
Наши рыбаки часто обладают недюжинной фантазией
Поэтому их внимание не обошло и бензопилу «Дружба». На её основе, например, изготавливаются моторы для лодок, буры льда и т
д.
Для того чтобы эта пила смогла служить в качестве лодочного мотора, требуется специальная насадка. Это конструкция с трехлопастным винтом, в которой есть редуктор. Обычно его передаточное отношение составляет 2 к 1, что позволяет лодке рыбака передвигаться по водной глади со скоростью около 20 км/ч. При этом фиксируется расход топлива около 1 л/час.
Некоторые рыбаки для зимнего лома сбрасываются и приобретают бур-насадку. Покупка в складчину мотобура не всегда рациональна ввиду некоторых сложностей с возможностью его коллективного использования. Одному человеку купить такое устройство оказывается дорого, а вот бур-насадка выступает неплохой альтернативой. В таком устройстве должен быть редуктор в виде червячной или клиноременной передачи, который позволит уменьшить количество оборотов двигателя пилы для нормальной работы насадки.
При поездках на рыбалку или охоту бывает полезно оснастить своё транспортное средство специальной лебёдкой, для которой силовым агрегатом тоже может выступать пила «Дружба». Если сам агрегат не очень мощный, то можно будет приобрести отводный блок, который позволит увеличить мощность, изменить траекторию движения вытаскиваемого транспортного средства.
Наши руки не для скуки
Бензопилу «Дружба» оптимально использовать в качестве двигателя и привода для следующих устройств:
- генератора;
- водяного насоса;
- пилорамы;
- циркулярки;
- болгарки.
Простейшая ременная передача с бензопилы на автомобильный генератор обеспечит электрическим светом загородный домик или дачу. Этим же способом можно подсоединить её к центробежному насосу, чтобы откачать воду из подвала.
Из бензопилы легко конструируется подобие ленточной пилорамы, где вместо ленты будет двигаться каретка с закреплённой на ней пилой. Такая конструкция позволит самому распустить ствол дерева на брус. Теоретически можно пилить и доски, но из-за широкого реза будут большие потери.
Конструктивные преимущества бензопил Урал
Устройство бензопилы Урал, независимо от ее предназначения и заводской модификации, надежно защищено от влаги, опилок, пыли и мелкого мусора. Это значительно увеличивает цикл между плановым обслуживанием каждой из моделей, и продлевает общие сроки их эксплуатации.
Бензопилы бренда Урал изначально комплектуются улучшенными двигателями, способными показывать высокую производительность при сравнительно низком потреблении топлива и незначительном уровне шума. Для быстрого и максимально плавного запуска каждого мотора в его фирменном оснащении предусмотрен стартер, который приводится в действие путем вытягивании троса.
Для стабильного взаимодействия рабочего двигателя и штатной пильной гарнитуры в устройство каждой переносной пилы Урал входит сцепление, состоящее из цельнометаллического барабана, усиленных пружин и ведущей звезды, показывающей высокую стойкость к нагреву, ударам и коррозии.
Возможность распиливать наиболее твердую древесину в оснащении каждой из моделей Урал обеспечивает штатная гарнитура. В ее комплектацию входит увеличенная закаленная шина, на которую устанавливается фирменная стальная цепь. Для их стабильной работы требуется смазка, которая поступает в пазы шины из отдельного пластикового бачка. Регулировка положения пильных органов производится путем поворачивания натяжителя, защищенного пластиковой крышкой корпуса.
Некоторые бензиновые переносные пилы бренда Урал отличаются от современных моделей нетипичной компоновкой корпуса и рабочих органов. Тем не менее производитель сохранил высокую эргономику каждой из моделей, и сделал их использование максимально удобным при любых эксплуатационных условиях.
Важная особенность цепных пил Урал, отличающая их от многих современных бензоинструментов, заключается в свободном доступе к расходным материалам. Каждый владелец модели Урал может купить практически любые запчасти или рабочие механизмы в сборе, а простота в самостоятельном ремонте позволяет установить их своими руками.
Рациональность изготовления самоделок
Рациональность – понятие относительное. Если человек славится своими прямыми руками и понимает, что для изготовления по-настоящему удобной пилорамы из бензопилы Урал придется потрудиться, то подобного рода строительный процесс вполне разумен. А если человек рассчитывает на собранном из подручных средств мотоблоке с мощностью двигателя в 3 лошадиные силы перепахать огромные площади, то ни о какой рациональности и речи быть не может.
Самостоятельная переделка бензопилы Урал в другое полезное в быту приспособление или полноценное транспортное средство без базовых знаний конструирования и понимания специфики работы основных узлов попросту бессмысленна. Это обязательно следует учитывать прежде, чем взяться за процесс переделки бензопилы Урал в какое-либо другое самодельное устройство.
Как выполнить лебедку и пилораму из бензопилы своими руками
Самоделки из «Урала» часто помогают и в строительстве. Так, при возведении зданий из цельного леса приходится распускать бревна на брус. Пилорама из бензопилы «Урал» дает возможность выполнить это действие максимально быстро, аккуратно, сохраняя точность реза. Главное преимущество – отсутствие необходимости выполнять какие-либо сложные переделки. Приспособление просто требуется надежно закрепить в самодельной раме, которая может быть изготовлена из металлических уголков или профильных труб. Бревно для обработки затем уже укладывается на подготовленные направляющие.

Схема изготовления пилорамы из бензопилы своими руками
Создавать чертежи пилорамы из бензопилы своими руками не придется, потому как в сети доступно большое количество идей, подходящих даже для человека без опыта.
Безопасность использования конструкции обеспечивается тем, что не нужно самостоятельно передвигать бревно. Для этой цели служит каретка с пилой, которая, в зависимости от толщины бревна, закрепляется на необходимой высоте. После включения рама перемещается точно, а срез остается аккуратным и получается ровным. Можно эксплуатировать устройство не только для цельного бруса, но и для распиловки доски, с целью заготовки дров.
Это интересно! Нужно быть готовым к тому, что в процессе работы будет образовываться большое количество опилок, так как для распиловки используется цепь значительной толщины.
Самодельная лебедка также станет хорошим помощником при строительстве, потому как с ее помощью получится легко поднимать грузы на высоту, перемещать спиленное дерево. Кроме того, применяя лебедку, удастся вытащить застрявшую машину или вытянуть из воды на берег катер. Эффективность работы будет зависеть от передаточного числа редуктора, в некоторых моделях показатель может достигать 1,5 т.

Пилорама из бензопилы позволит легко и быстро превратить бревна в брус
Чтобы прибором было удобно пользоваться, потребуется выполнить прочную раму, используя сварочные работы. На раме следует прочно закрепить мотор, редуктор и барабан с системой торможения. Для фиксации рамы на корпусе следует предусмотреть отверстия и проушины, через которые можно будет установить прибор на любую поверхность.
Регулировки бензопилы Урал 2Т
Вопрос: Собрал бензопилу Урал 2Т Электрон. Заводится с пол оборота, работает на холостых идеально.
Цилиндр с поршнем оставил старый, только кольца поменял. Начинаешь давать полную нагрузку — сразу глохнет.
На верхушке поршня до первого кольца скол. Может из-за этого глохнуть?
Ответ: Если самодельная прокладка под цилиндром — возможно, перекрыт импульсный канал.
Как заглохнет, смотрите свечу — (переливает- недоливает). Попробуйте провести регулировку карбюратора.
Винт, который ближе к воздушной заслонке нужно выворачивать (против часовой стрелки) на 1/2 оборота.
Вопрос: Подскажите, как сделать регулировку бензопилы бензопилы Урал 2Т Электрон, и вообще что регулировать?
Работает только на больших оборотах, газ отпускаешь глохнет. Вообще, когда обороты чуть понижаешь, глохнет. Начинаешь газовать резко, тоже глохнет как будто захлёбывается.
Пробовал крутить карбюратор, не поддаётся, поставил прежнюю регулировку, снимал его, промывал, всё бесполезно.
И свечу новую поставил — не помогает. Завожу газу ей, сразу бывает не сразу заглохнет, потом всё равно глохнет. Подскажите, что ещё можно попробовать, в чём причина?
Ответ: базовые регулировки карбюратора: винт Х (тот что ближе к цилиндру) завернуть до упора и выкрутить на один оборот, винт Р — завернуть до упора и выкрутить на пол оборота, не поможет- смотреть состояние сальников и прокладок.
Вопрос: Перебираю старенькую б/п Урал. В сцеплении две пружины разбиты сильно, а целые разные по длине и диаметру проволоки.
Они должны быть одинаковые, или «включаться» по очереди?
Ответ: да одинаковые; — нет, работают одновременно, при установке желательно добиться максимально «одновременного срабатывания».
Вопрос: Собрал я свой аппарат б/п урал, но есть проблема — нет холостого хода, при работе дымит и всё время при второй попытке завести, то свеча мокрая, но сейчас куда-то пропала и искра.
Снял электронику, а там мокро от бензина, видимо когда менял сальник, не ровно сел. Как самому отрегулировать количество смеси и холостой ход?
Ответ: разобраться с сальником, устранить мокроту, иначе моторчик будет очень странно себя вести.
Дайте на холостом ходу полтора, для запуска будет достаточно, но сначала сальник.
Вопрос: Почему цепь не останавливается на холостом ходу?
Ответ: Причин несколько: Не отрегулированы холостые обороты, не отрегулирована муфта сцепления.
Вопрос: Подскажите, пожалуйста как правильно ставить поршень. Одну поршневую уже испортил, поставив поршень замками в сторону глушителя, то есть в сторону конуса, как по инструкции.
Пила Урал проработала два дня и сломалась, разобрал и увидел, что нет замка между кольцом, по моему он выгорел, так как направлен в сторону выхлопа.
Сейчас поставил новый поршень замками в сторону карбюратора, но пила отказывается нормально работать, рывки, стрельба и тому подобное.
Переставлял два магнето заводских и одно спаял сам результат тот же, два карбюратора результата не дают, сальники и прокладки все новые. Разбирал её раз двадцать, а причины нет.
Ответ: правильно, только это относится к верхнему замку, два замка никак не возможно установить в одну сторону.
При не правильной установке мотор не будет завивать мощность , тяжело заводится, работать не возможно. Я специально ставил для пробы.
Если 2 дня проработал то установлен правильно. ориентировка по установке поршня идет по верхнему стопору , он должен быть направлен в сторону конуса на коленвале.
Попробуйте использовать другой маховик, возможно магниты немного утратили свои свойства. Если стреляет в карбюраторе или в глушителе, то попробуйте заменить свечи.
Вопрос: как разобрать подпружиненную шину и вытащить звездочку? Не могу догадаться.
Ответ: Стачиваются две заклёпки по краям и вынимается весь наконечник со звёздочкой.
Вопрос: Пилил дрова и внезапно перестала крутиться цепь. Движок работает нормально. Причем от руки цепь прокручивается. Подскажите, пожалуйста. что делать и с чего начать?
Ответ: думаю смотреть надо редуктор и муфту сцепления.
Вопрос: Собрал пилу бензопилы Урал 2Т Электрон, завёл, настроил карбюратор, вроде работает, почти всегда заводится с одного рывка.
Я поменял только поршень и кольца, надо ли обкатывать по полной программе 4 заправки бачка на холостых или это перебор?
Пила на месте не стоит, брыкается, надо её поддерживать и поэтому сидеть ждать 4 бачка на холостых будет утомительно.
Да, ещё выявил вот что. У меня нет провода на «Стоп» поэтому глушу пилу, закрывая воздушную заслонку.
После этого заливает свечу и её надо выкручивать, протирать и продувать цилиндр. Можно ли глушить пилу, снимая колпачок со свечи?
Описание бензопилы Урал и ее отличия от модели Дружба
«Сердцем» конструкции отечественного инструмента служит двухтактный мотор внутреннего сгорания. Пила удерживается в руках благодаря прочным рукояткам, а пильным элементом служит шина. Небольшие габариты бензопилы позволяют успешно эксплуатировать ее в быту для ухода за садом, а также на лесопилке.
Изначально модель Урал проектировался, как инструмент узкого профиля, применяемый при валке леса. По этой причине бензопила Дружба лучше знакома отечественным фермерам, так как она чаще используется для бытовых целей. Тем не менее, высокая производительность пилы Урал позволила обеспечить более 80 % отечественных заготовок лесной древесины.
Существует несколько основных факторов, по которым пила Урал отличается от модели Дружба. К ним относится:
Пила Урал обладает большей мощностью – 5 л. с. против 4 «лошадок», выдаваемых мотором Дружбы; Бензопила Урал на 1,5 кг. легче Дружбы; В конструкцию пилы Урал входит редуктор, предназначенный для поворота шины на 90 градусов
В конструкции Дружбы этот элемент отсутствует; В бензопиле Урал рукоятки расположены сверху, что позволяет использовать ее даже в случаях очень толстого снежного слоя; Модель Урал улучшена гидравлическим клином, позволяющим валить деревья в требуемом оператору направлении; В конструкцию пилы входит система автоматической подачи масла на цепь; Важное преимущество – это возможность использовать с инструментом разные насадки, диски, насосы – каждое такое приспособление для бензопилы Урал помогает вести хозяйство, не покупая специальные агрегаты для каждого отдельного вида работ. Все эти преимущества сделали пилу Урал надежным помощником не только на лесозаготовке, но и в домашних условиях, когда владельцу требуется заготовить большое количество брусьев для строительства или очистить сад от крупных сухих веток
Все эти преимущества сделали пилу Урал надежным помощником не только на лесозаготовке, но и в домашних условиях, когда владельцу требуется заготовить большое количество брусьев для строительства или очистить сад от крупных сухих веток
Все эти преимущества сделали пилу Урал надежным помощником не только на лесозаготовке, но и в домашних условиях, когда владельцу требуется заготовить большое количество брусьев для строительства или очистить сад от крупных сухих веток.
Уральская бензопила
Бензопила. Это ручной инструмент, оснащенный двигателем внутреннего сгорания. Рукоятка помогает держать в руках, а шина служит рабочей частью. Довольно мобильный инструмент, поэтому он незаменим как для частного фермерства, так и для лесозаготовок.
Простые бытовые пилы имеют слегка упрощенную конструкцию, что облегчает их использование обычным человеком без опыта. Но условия его эксплуатации мягче. Рабочее время не более 20 часов в месяц. Профессиональные подразделения, такие как Урал, имеют широкий профиль и условия, при которых они могут использоваться гораздо более строго, включая рабочее время.
Изначально уральская бензопила была разработана как узкоспециализированный профессиональный инструмент для лесного вала. Поэтому бензопила «Дружба» ее сестры более известна частному пользователю, в то время как «Урал» используется в основном профессиональными лесорубами. Его производительность обеспечила 80% отечественных рубок. Первая уральская бензопила родилась в 1935 году, а в 2005 году Ф.И. Дзержинский произвел 14 миллионов единиц этого оборудования.
В чем разница между уральской бензопилой и Дружбой
Хотя обе эти пилы во многом похожи, они иметь ряд отличий:
- «Урал» имеет более высокую номинальную мощность. 5 лошадиных сил, по сравнению с «Дружбой» имеет всего 4 л.С.
- Небольшой вес Urals 11 кг (в Friendship 12.5) делает инструмент более удобным в использовании;
- Урал оснащен коробкой передач, способной поворачивать пильную шину на 90 градусов, что значительно облегчает рубку;
- Уральские руки, вытянутые до верха, позволяют работать даже при большой толщине снежного слоя. Кроме того, спина оператора практически не разгружена;
- Уральская бензопила улучшена гидроклином для рубки деревьев в нужном направлении. Система смазки цепи, которая не была доступна в предыдущей модели, также была представлена.
Автоматическая смазка цепи позволяет работать с очень высокой производительностью. Интересно, что лесорубы подумали сменить механизм распиловки Урала на Стил, получив производительность от такой модификации.
Недостатки уральской бензопилы
Конечно, как и любой агрегат, со всеми его преимуществами, уральская бензопила У него есть свои недостатки:
- Сажа из двигателя во время работы инструмента. Даже учитывая довольно высокое расположение рукояток, лесорубу часто приходится дышать не лесными запахами, а ожогами;
- Чрезмерно большая сетка воздушного фильтра, в отличие от иностранных брендов. Таким образом, внутренний блок имеет сетку в десятые доли миллиметра, а внешний. В микронах. Этот факт значительно снижает производительность инструмента;
- Увеличение доли бензина и масла на 20: 1 по сравнению с импортными моделями, работающими на 50: 1;
- Периодические проблемы с выходом из строя коробки передач и заклиниванием двигателя;
- Пила не имеет тормозной цепи.
Но среди факторов, которые на первый взгляд кажутся недостатками, можно найти положительные стороны. Например, детали двигателя уральской бензопилы не так тщательно настроены, как у иностранного агрегата. По этой причине мелкий мусор не навреди, жжение внутри.
Профессионал для дома
Уральская бензопила может успешно использоваться как домашний помощник. Он отлично справится с плановой обрезкой деревьев, вырубкой дров, а также при работе с любым деревом. Он может разрезать как поперек волокон, так и вдоль них. Практически никакие погодные условия не пугают этот инструмент, но между 40 и 40 градусами Цельсия. В обслуживании бензопилы нет ничего сложного. Заправка смесью бензина и масла.
READ Самая Лучшая Торцовочная Пила С Протяжкой
Что можно сделать из бензопилы: основные приспособления для бензопилы, получившие популярность
Если приобрести специальные насадки на инструмент, то установить их будет чрезвычайно просто, для этого не потребуется ничего переделывать или разбирать корпус инструмента. Все готовые приспособления рассчитаны именно для установки на бензопилу. Другим важным преимуществом приобретения именно бензопилы считается ее автономность. Это объясняется тем, что все электрические устройства требуют наличия розетки 220 В. Применяя бензопилу, получится использовать самоделки в полевых условиях, будь это дрель, ледобур или кородер.
Установленная своими руками насадка-болгарка на бензопилу позволяет эксплуатировать технику не только в качестве бензореза, но и как угловую шлифовальную машинку. Насадка связывается с устройством посредством специальной шпильки, а вращаться начинает с помощью ремня от шкива, закрепленного на вал ведущей звездочки. Таким образом, приспособление устанавливают вместо пильной шины
Важно правильно подобрать диаметр круга насадки, для этого нужно предварительно изучить инструкцию бензопилы «Дружба» или другой техники, используемой для изготовления полезного прибора
Обратите внимание! Специалисты предупреждают, что не во всех моделях возможно установить переходник, чтобы подогнать цоколи. Кородер является одной из самых популярных насадок для бензопилы
Кородер является одной из самых популярных насадок для бензопилы.
Другая распространенная среди пользователей насадка ‒ кородер, применяемая для срезания коры с деревьев. Также насадка популярна у столяров, потому как с ее помощью легко очистить от коры, сучков и наростов необработанный лес. Некоторые используют насадку, чтобы создать продольные или поперечные пазы на брусе.
В основном выделяют два типа кородеров:
- Барабанные. Главная область применения – снятие коры, второе название – окариватель.
- Дисковые. Используются для создания разного рода углублений.
В продаже встречается несколько насадок, отличающихся шириной захвата, чаще это 80 и 100 мм. В случае затупления ножей есть возможность вторичной заточки. Если ножи полностью вышли из строя, лучше приобрести новый комплект производителя. Сама насадка представляет собой фрезу или барабан, закрепленный в узле подшипника. Приведение в действие осуществляется за счет ременной передачи, а скорость вращения регулируется силой нажатия на ручку акселератора. Также на скорость влияет и диаметр шкива: чем он больше, тем выше скорость. Шпильки для установки насадки идут в комплекте.
Принцип переделки
В базе практически хоть какой самодельной бензопилы лежит ее использования как универсальный привод, который можно использовать для множества разных устройств. Область их использования очень широка: резки камня и металла, откачка воды, удаление снега, бурение скважин и норив, вождение, перемещение разных предметов, плавание и даже полет.
Они реализуют потенциал бензопилы, используя разные насадки и крепления. Хоть какое изменение базируется на ординарном принципе отключения мощности мотора: до выходного вала присоединенное устройство, нужное для ведущего. Наличие массивного мотора, малогабаритных размеров и относительно маленького веса этого инструмента, самостоятельности и возможности работать в практически экстремальных критериях делают его способности воистину бескрайними
Немаловажное значение имеет практическая конструкция муфты, которая защищает составляющие и системы пилы от повреждений и перегрузок. Инструмент, сделанный из бензопилы, герметичен, потому его можно использовать практически в любом положении
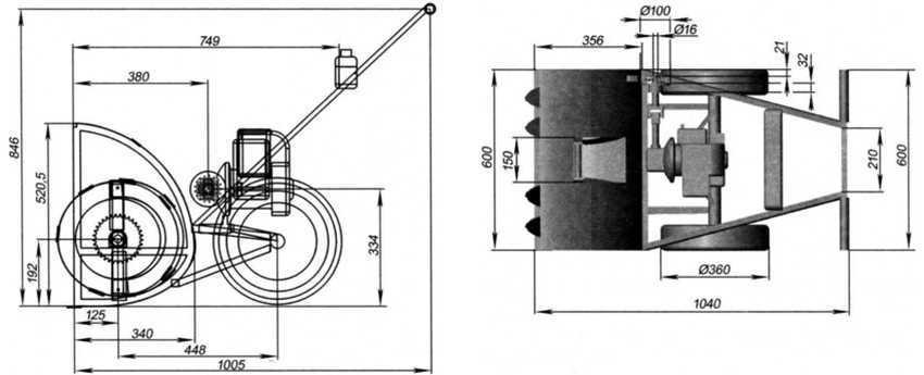
Мотокультиватор, снегоуборщик, ледобур и буроям своими руками
Мотор из бензопилы отлично подойдет и для создания мотокультиватора, предназначенного для вспашки целины (для легких грунтов). Для работы с плотными и влажными почвами мощности и крутящего момента двигателя скорее всего не хватит, а вот для взрыхления поверхностного слоя и удаления оставшихся в земле корней бурьянов культиватора из бензопилы будет достаточно. Главной деталью устройства является вращающаяся фреза, за счет которой и происходит передвижение техники по участку.
![]()
Чертеж снегоуборщика выполненного своими руками с применением бензопилы.
Если в культиваторе заменить вал с лемехами на шнек, а также оснастить конструкцию заборным устройством и трубой для откидывания снега, культиватор превращается в снегоуборочную машину. Мотора от любой пилы мощностью 3-5 лошадиных сил будет более чем достаточно для уборки рыхлого снега на участке
Важно только выполнить удобный шнековый механизм. Для этого чаще всего применяются лопасти, изготовленные из толстой резины
В качестве заборного устройства подойдут детали из оцинкованной стали. Выброс снега легко осуществить, установив пластмассовую трубу большого диаметра.
Бурить лед или промерзшую землю ручным инструментом – довольно долгое и физически сложное занятие. Создание мотобура своими руками значительно упростит выполнение этой задачи. В этом случае, помимо мотора, необходимо иметь редуктор, регулирующий количество оборотов в минуту, потому как такого сильного вращения, как у бензопилы, устройству не требуется.
На заметку! Если не имеется достаточного количества знаний относительно работы редуктора, можно обратиться за помощью к инженеру, который поможет правильно выбрать нужный механизм. Необходимый тип прибора подбирается в зависимости от характеристик мотора.
Для создания мото- или ледобура своими руками, первое, что потребуется сделать, – выполнить надежный корпус, представляющий собой усеченную пирамиду, состоящую из двух прямоугольников различных размеров. Понадобятся болгарка, сварочный аппарат и металлические трубы. Именно внутри этой рамы и будет устанавливаться редуктор, соответственно, габариты корпуса напрямую будут зависеть от размеров редуктора.
![]()
Буроям из бензопилы станет незаменимым помощников в хозяйстве.
Для надежности специалисты рекомендуют в качестве шнека взять деталь от хорошего мотобура, выполненную из прочной стали, потому как низкокачественный материал не выдержит больших нагрузок. Другой важный вопрос – надежное крепление бура, которое можно осуществить при помощи обыкновенной трубы, зафиксированной с двух сторон шпонками или шпильками. Такой способ крепления позволит менять буры или использовать другие приспособления для работы.






























